1317 Jackson St, Denver, CO 80206
Toggle Navigation
Images
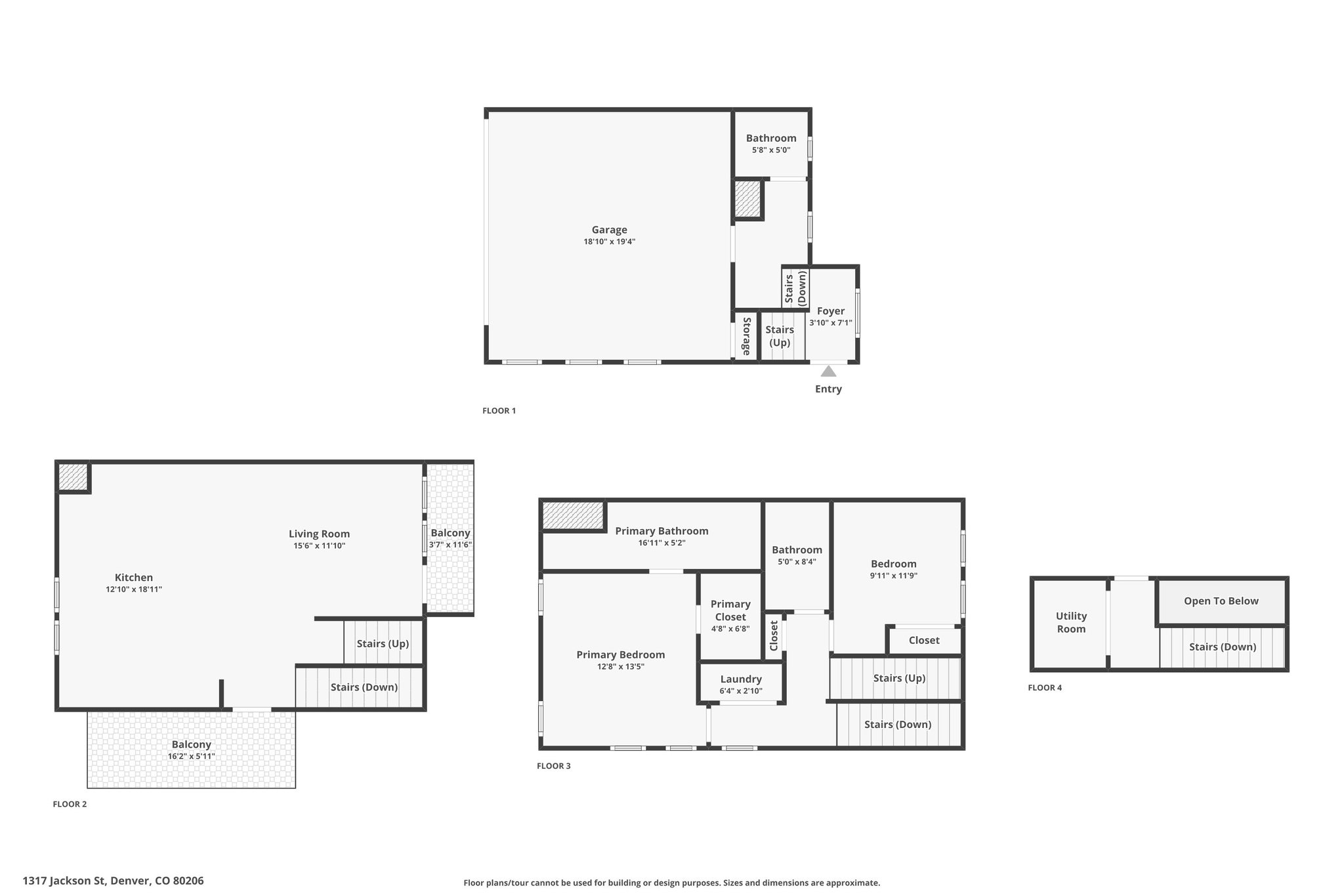
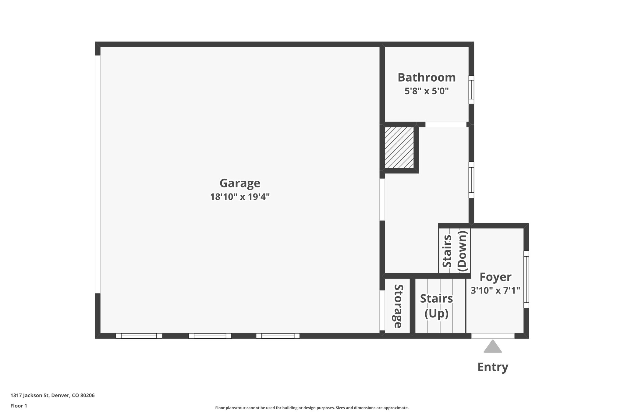
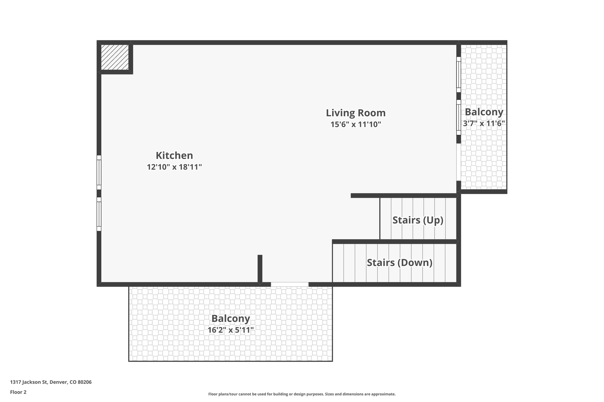
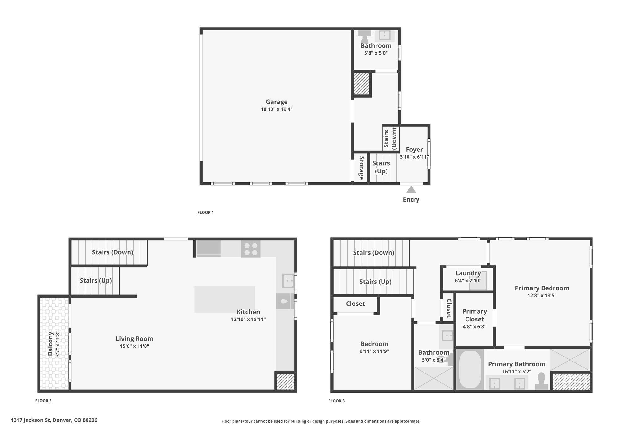
Floor Plans
3D Tour
Map
1317 Jackson St
Denver, CO 80206
Scroll to Content
Images
Slideshow
Photo Grid
Hide
Previous
Next
Show more
Floor Plans
Slideshow
Photo Grid
Hide
Previous
Next
3D Tour